Alennuskoodi / lahjakortti
Onko sinulla kampanja- tai alennuskoodi?
Jaa tuote







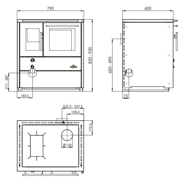
Heimdall -puuhellassa hormiliitos on takana oikealla. Hellasta on saatavilla myös malli, jossa hormiliitos on hellan päällä.
5128,00 € / kpl
- Tuotekoodi: 715-031-79
- Toimitusaika: 2 - 3 vkoa
- TilaustuoteToimitusaika n. arkipäivää
- Toimituskulut alkaen 350,00 €
kpl
Heimdall 790 -puuhella, hormiliitäntä takana oikealla.
Tuote
Heimdall 790 on moderni puuliesi, jossa yhdistyvät perinteinen käsityö ja nykyaikainen palotekniikka. Selkeälinjainen muotoilu sopii monenlaisiin keittiöihin. Liesi tarjoaa tasaisen ja miellyttävän lämmön sekä mahdollisuuden ruoanlaittoon – aivan kuten perinteinen puuhella, mutta modernilla tehokkuudella.
Heimdall 790 on suunniteltu helppoa käyttöä ja vähäistä huoltoa varten. Tulipesässä on vain kaksi vaihdettavaa vermikuliittilevyä, jotka on helppo vaihtaa tarvittaessa. Tämä tarkoittaa vähemmän kuluvia osia ja yksinkertaisempaa huoltoa verrattuna moniin perinteisiin puuliesiin.
Lieden konvektiolämmitys levittää lämmön tasaisesti huoneeseen ja automaattinen vedonsäätö yhdessä säädettävän palamisilman kanssa varmistaa tasaisen ja tehokkaan palamisen.
Heimdall 790 sisältää useita arkea helpottavia ominaisuuksia:
- säädettävä korkeus (880–920 mm)
- uunin lämpömittari
- sytytyspelti helpottamaan sytytystä
- sekundääri-ilman säätö tehokkaaseen palamiseen
- ulosvedettävä säilytyslaatikko
- helppo nuohous useiden huoltoluukkujen ansiosta
Materiaali
Peltikuorinen, maalattu harmaaksi. Kansi Corten -terästä.
Tekniset tiedot
Teho 5,7 kW
Savuhormiliitäntä Ø12 cm
Korkeus 85 cm (mahdollisuus 88-92 cm)
Leveys 79 cm
Syvyys 60 cm
Tulipesän koko 20x20x38 cm
Paino 160 kg
Savukaasulämpötia 180°C/ 216°C
Hormiliitos takana oikealla
Huom! Puuhellasta on saatavilla myös malli, jossa hormiliitäntä on hellan päällä.
Kysykää ystävällisesti lisätietoja.
Valmistusmaa
Ruotsi
Rahti
Tilaustuotteissamme rahti laskutetaan erikseen.
Tuote
Heimdall 790 on moderni puuliesi, jossa yhdistyvät perinteinen käsityö ja nykyaikainen palotekniikka. Selkeälinjainen muotoilu sopii monenlaisiin keittiöihin. Liesi tarjoaa tasaisen ja miellyttävän lämmön sekä mahdollisuuden ruoanlaittoon – aivan kuten perinteinen puuhella, mutta modernilla tehokkuudella.
Heimdall 790 on suunniteltu helppoa käyttöä ja vähäistä huoltoa varten. Tulipesässä on vain kaksi vaihdettavaa vermikuliittilevyä, jotka on helppo vaihtaa tarvittaessa. Tämä tarkoittaa vähemmän kuluvia osia ja yksinkertaisempaa huoltoa verrattuna moniin perinteisiin puuliesiin.
Lieden konvektiolämmitys levittää lämmön tasaisesti huoneeseen ja automaattinen vedonsäätö yhdessä säädettävän palamisilman kanssa varmistaa tasaisen ja tehokkaan palamisen.
Heimdall 790 sisältää useita arkea helpottavia ominaisuuksia:
- säädettävä korkeus (880–920 mm)
- uunin lämpömittari
- sytytyspelti helpottamaan sytytystä
- sekundääri-ilman säätö tehokkaaseen palamiseen
- ulosvedettävä säilytyslaatikko
- helppo nuohous useiden huoltoluukkujen ansiosta
Materiaali
Peltikuorinen, maalattu harmaaksi. Kansi Corten -terästä.
Tekniset tiedot
Teho 5,7 kW
Savuhormiliitäntä Ø12 cm
Korkeus 85 cm (mahdollisuus 88-92 cm)
Leveys 79 cm
Syvyys 60 cm
Tulipesän koko 20x20x38 cm
Paino 160 kg
Savukaasulämpötia 180°C/ 216°C
Hormiliitos takana oikealla
Huom! Puuhellasta on saatavilla myös malli, jossa hormiliitäntä on hellan päällä.
Kysykää ystävällisesti lisätietoja.
Valmistusmaa
Ruotsi
Rahti
Tilaustuotteissamme rahti laskutetaan erikseen.
Myymälä
Saatavuus
Osoite
Yhteystiedot ja aukioloajat
Oletko ostanut tämän tuotteen?
Kotijakelu
350,00 €
